El Govern prevé que el hostal Términus esté rehabilitado a mediados de 2024
El edificio se vallará de forma inminente y se ocultará la fachada con una tela que reproducirá a la original, aunque las obras no comenzarán hasta finales de año o principios del próximo

Aspecto actual del Hostal Terminus / Guillem Bosch
El edificio del antiguo Hostal Términus estará completamente rehabilitado a mediados de 2024, una vez se hayan ejecutado las obras de rehabilitación cuyo inicio el conseller de Movilidad y Vivienda, Josep Marí, prevé para finales del presente año o principios del siguiente.
Mientras tanto, se procederá a vallar el inmueble y a colocar una tela que reproducirá la primitiva fachada con el objetivo de dar una mejor imagen de la zona mientras duren las obras y ocultar también los numerosos grafitis que la afean.
Marí, junto con el alcalde de Palma, José Hila, y los arquitectos autores del proyecto de rehabilitación integrado por Martí Lucena, Guillem Tomás, Antònia Mayol, Lucía Cabot, Antonio Pérez Villegas y Santiago Fiol, han presentado esta mañana el proyecto de rehabilitación que ya cuenta con la aprobación tanto de la comisión de Centro Histórico del Ayuntamiento de palma como por la de Patrimonio del Consell, ambas necesarias puesto que se trata de un edificio preservado como Bien Catalogado.

Presentación de la restauración del Hostal Términus, en Palma / CAIB
El conseller ha explicado que a partir de ahora se iniciará el proceso de licitación de las obras, que cuentan con un presupuesto de 3,4 millones. Se prevé que estén adjudicadas en unos meses con el fin de iniciar los trabajos a finales de este año o a principios del próximo.
En cuanto a sus usos, por el momento se sabe que se va a recuperar el bar que ocupa parte de la primera planta, para destinar el resto a un salón de actos. La primera planta y las buhardillas situadas sobre los dos cuerpos laterales del inmueble se reconvertirán para usos ferroviarios. Por el momento solo se ha decidido que una parte de este espacio ocupe una réplica del servicio del control ferroviario, ahora situado en la estación intermodal. Según el Conseller se ejecutarán los trabajos e instalaciones necesarias para que puedan albergar las instalaciones que finalmente se decidan sin tener que realizar obras nuevamente.

Alzado del proyecto de restauración del Hostal Términus / CAIB
El edificio fue recuperado por Servicios Ferroviarios de Mallorca en enero de 2019, incorporándose al patrimonio público tras la finalización del contrato de alquiler que estaba en vigor desde 1936.
Fue construido en 1913 por la compañía Ferrocarriles de Mallorca según el proyecto redactado por Eusebio Estada, aunque su ejecución se realizó en los años 30 una vez que los otros dos edificios de la estación del tren (el de viajeros y el de oficinas, también proyectados por Estada), por lo que, en líneas generales comparten los mismos rasgos de estilo.

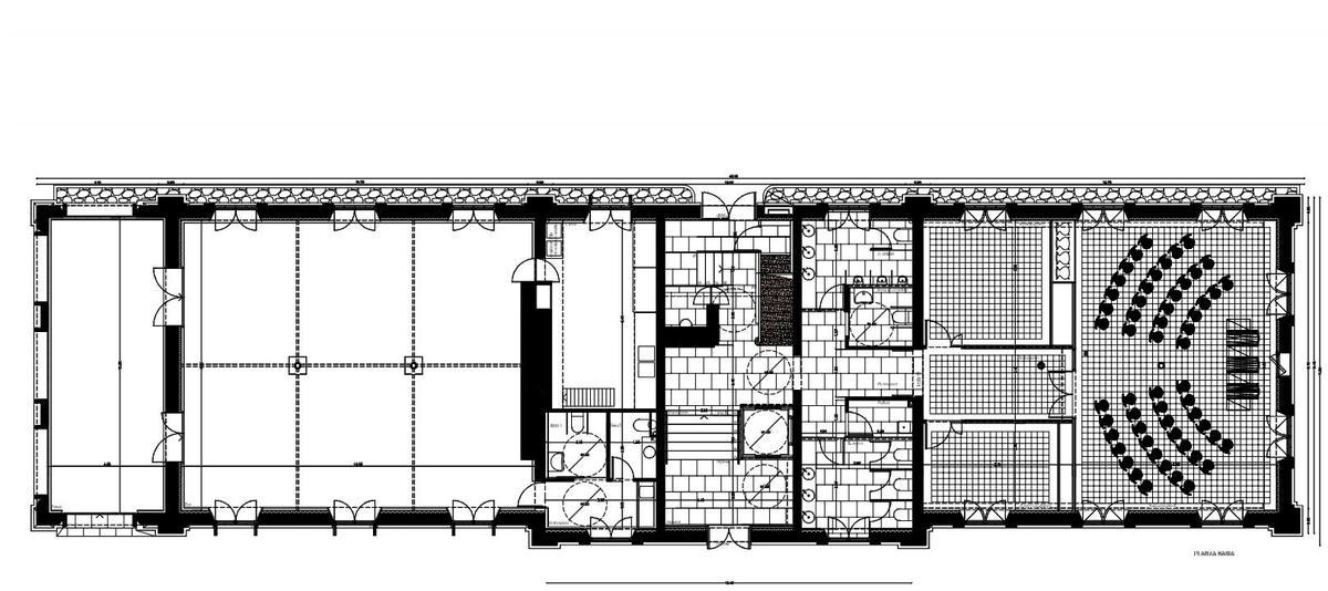
La planta del primer piso muestra la recuperación del antiguo bar y un espacio dedicado a auditorio / CAIB
El proyecto de rehabilitación previsto mantiene la estructura y los materiales utilizados en su construcción, tal como explicó el arquitecto Martí Lucena.
Se actuará en todo el edificio con el fin de adaptarlo a los nuevos usos manteniendo la estructura y los tres cuerpos diferenciados. En la planta baja se ubicará una sala polivalente de uso social y cultural, mientras que en las plantas superiores se ubicará el ya referido centro de control del tráfico ferroviario dotado con las últimas tecnologías.
En el cuerpo central, que cuenta con dos plantas y un sótano, se situarán los accesos a las plantas superiores, además de un ascensor cuya caja no sobrepasará la visual de la azotea, según Lucena.
Los cuerpos laterales, en cambio, carecen de sótano, pero cuentan con una planta más, cuya altura se incrementará en unos centímetros rebajando el nivel del techo de la primera planta.
Según Lucena, la modificación más significativa en relación a la distribución anterior consiste en la incorporación del ascensor en el cuerpo central con el fin de posibilitar la accesibilidad universal, además de una nueva escalera, lo que ha obligado a suprimir un baño adaptado que estaba previsto en la propuesta inicial modificada por las exigencias de la comisión del centro Histórico y de Patrimonio.
El proyecto contempla la eliminación de los grafitis
El proyecto de rehabilitación del antiguo hostal Términus dado a conocer ayer por el conseller de Movilidad y Vivienda, Josep Marí, y el alcalde de Palma, José Hila, contempla también la eliminación de las pintadas vandálicas que ocupan la totalidad de la fachada.
Este trabajo se realizará bajo la dirección de un equipo de restauración especializado que seguirá las indicaciones del estudio de conservación de la fachada realizado por la restauradora Marina Ramisa. De esta forma, se mantendrán tanto la piedra artificial de los zócalos perimetrales, como la piedra de Santanyí del conjunto, limpiándola y tratándola con productos hidrófugos. Se trata de una intervención que también ha sido aprobada por la comisión de Patrimonio del Consell de Mallorca.
También se procederá a la sustitución de las puertas y ventanas de aluminio del invernadero de la cafetería, construido en 1939) por persianas de madera, dejando esta zona como una terraza cubierta.
- Cortes en Palma este fin de semana: horarios, zonas afectadas y autobuses desviados
- La promotora que construirá 166 alquileres 'asequibles' en Palma los alquila en Madrid por hasta 1.800 euros al mes
- Un vertido de hormigón en las obras del edificio de 31 de Desembre de Gaspar Bennazar invade parte de la acera
- Las nuevas piscinas de s'Aigua Dolça de Palma completan su equipamiento interior antes de la apertura
- La Gelateria Ca'n Miquel inaugura el verano en Palma: 'Quedan pocos establecimientos antiguos en Mallorca que hagan helados artesanales
- El profesor David Pujol, favorito para ser el candidato de Més a la alcaldía de Palma
- Un vecino de Son Ferriol lleva siete años denunciando los daños que le ocasiona un árbol sin que Cort le haga caso
- Dia abre dos nuevos supermercados en Palma: ubicación, horario y descuentos para los vecinos del barrio